建売
宮城エリア
【新築一戸建て】仙台市太白区郡山
- 販売価格
- 4,180万円(税込)
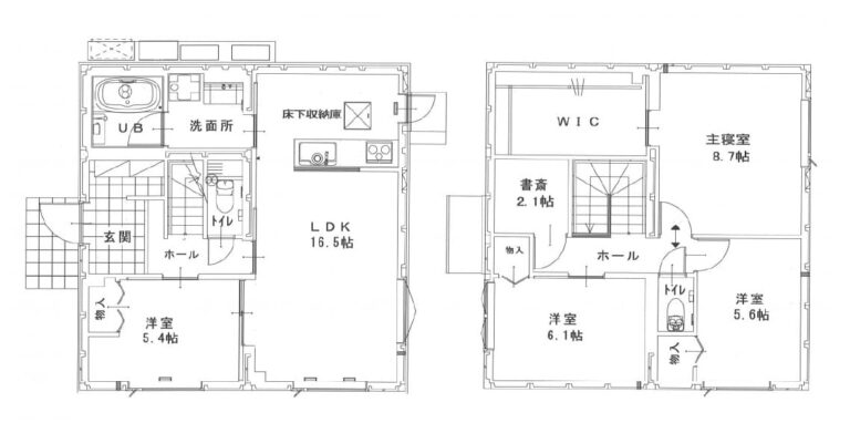
- 間取り
- 4LDK
- 建物面積
- 109.80㎡(33.21坪)
- 土地面積
- 140.82㎡(42.60坪)
- 完成日
- 2024年4月
おすすめポイント
- 宮城県初!!全館空調採用のモデルです!
- 圧倒的に強いコンクリートパネルで作る住宅!
- ご家族の大切な命と財産をお守りできる住宅です!
- 郡山小学校まで徒歩7分。主要道路からのアクセスの良い、好立地。
- 日当たりの良い南向き。
- 間取り4LDK+ウォークインクローゼット+書斎
ギャラリー
間取り・区画情報
周辺環境
エネオス仙台BPSS
761m
セブンイレブン
546m
仙台市立郡山中学校
1192m
仙台市立郡山小学校
476m
仙台市立病院
2803m
仙台諏訪郵便局
1473m
仙台市太白区役所
2915m
エネオスEneJet仙台BPSS
761m
【備考】
浴室暖房、浴室乾燥機、追焚機能、タンクレストイレ、トイレ2ヶ所、システムキッチン、IHクッキングヒーター、3口以上コンロ、全居室収納、ウォークインクローゼット、全居室エアコン、シューズインクローゼット、クローゼット、モニター付インターホン、カードキー、ディンプルキー、全居室フローリング、上水道、下水道、電気、側溝、照明器具、火災警報器(報知機)、インターネット対応、BS端子、複層ガラス / 施工会社:百年住宅株式会社
浴室暖房、浴室乾燥機、追焚機能、タンクレストイレ、トイレ2ヶ所、システムキッチン、IHクッキングヒーター、3口以上コンロ、全居室収納、ウォークインクローゼット、全居室エアコン、シューズインクローゼット、クローゼット、モニター付インターホン、カードキー、ディンプルキー、全居室フローリング、上水道、下水道、電気、側溝、照明器具、火災警報器(報知機)、インターネット対応、BS端子、複層ガラス / 施工会社:百年住宅株式会社
