建売
宮城エリア
【新築一戸建】 仙台市太白区東中田 西区画
- 販売価格
- 4,290万円(税込)
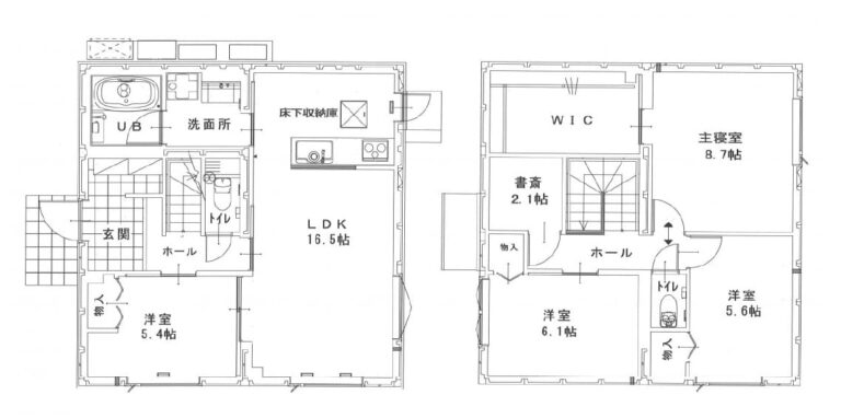
- 間取り
- 3LDK
- 建物面積
- 107.92㎡(32.64坪)
- 土地面積
- 126.77㎡(38.34坪)
- 完成日
- 2024年5月
おすすめポイント
- 南道路で日当たり良好です!
- 百年住宅NEWデザイン「RCBOX」誕生!
- 地震に無傷の構造性能はそのままに、最新のトレンドを取り入れた住宅です!
- 内装はコンクリートが映えるヴィンテージ空間!
- 仙台市立袋原小学校区
- ラグジュアリーなインテリア空間
- ランドリー室/シューズクローク/ファミリークローク完備
- 欲しい設備が詰まった住宅
- 商業施設・医療機関も近く、人気エリアです
- 3LDK+SC+WIC+FC+駐車場3台
ギャラリー
間取り・区画情報
周辺環境
ファッションセンター
しまむら中田店731m
ヤマザワ中田店
1,019m
セブンイレブン
524m
仙台市立中田中学校
1,488m
仙台市立袋原小学校
824m
仙台袋原郵便局
540m
七十七銀行中田支店
1,710m
中田温水プール
1,098m
【備考】
浴室暖房、浴室乾燥機、追焚機能、シャワー付洗面化粧台、タンクレストイレ、カウンターキッチン、システムキッチン、IHクッキングヒーター、3口以上コンロ、全居室収納、ウォークインクローゼット、全居室エアコン、シューズインクローゼット、クローゼット、モニター付インターホン、ディンプルキー、全居室フローリング、上水道、下水道、電気、側溝、照明器具、火災警報器(報知機)、BS端子、複層ガラス/施工会社:百年住宅株式会社
浴室暖房、浴室乾燥機、追焚機能、シャワー付洗面化粧台、タンクレストイレ、カウンターキッチン、システムキッチン、IHクッキングヒーター、3口以上コンロ、全居室収納、ウォークインクローゼット、全居室エアコン、シューズインクローゼット、クローゼット、モニター付インターホン、ディンプルキー、全居室フローリング、上水道、下水道、電気、側溝、照明器具、火災警報器(報知機)、BS端子、複層ガラス/施工会社:百年住宅株式会社
