太白区郡山
街かどモデルハウス【 RC-BOX 】
郡山小学校まで徒歩7分子育てしやすく、かつ主要道路からのアクセスの良い、好立地。太白区エリア初の街かどモデルハウスがオープンします。さらに、百年住宅初の、全館空調を採用したモデルとなります。延べ33.8坪の4LDK。ゆとりある広さがご家族との時間をより充実させることができます!
- 住所
- 宮城県仙台市太白区郡山欠ノ上33-3
- 営業時間
- 10:00〜17:00
- 定休日
- 火・水曜日
見どころポイント
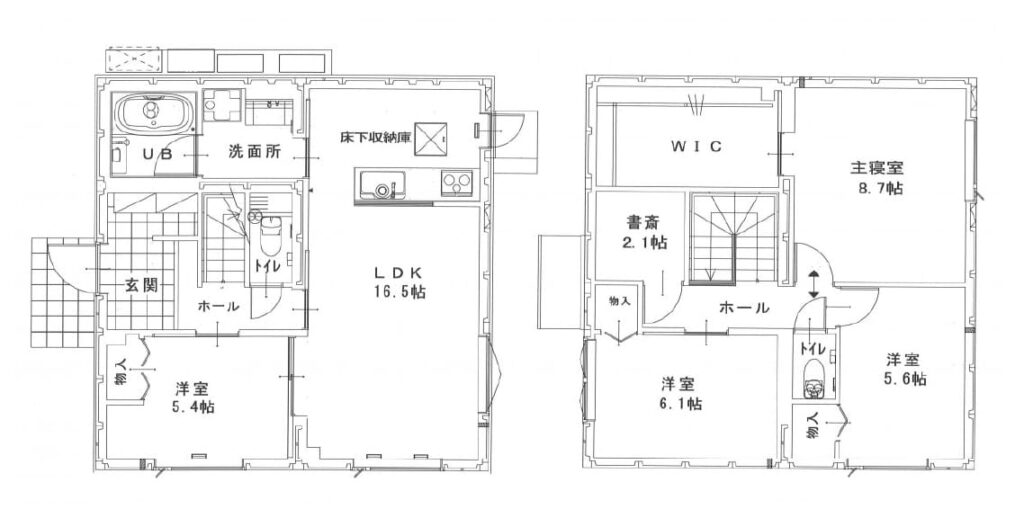
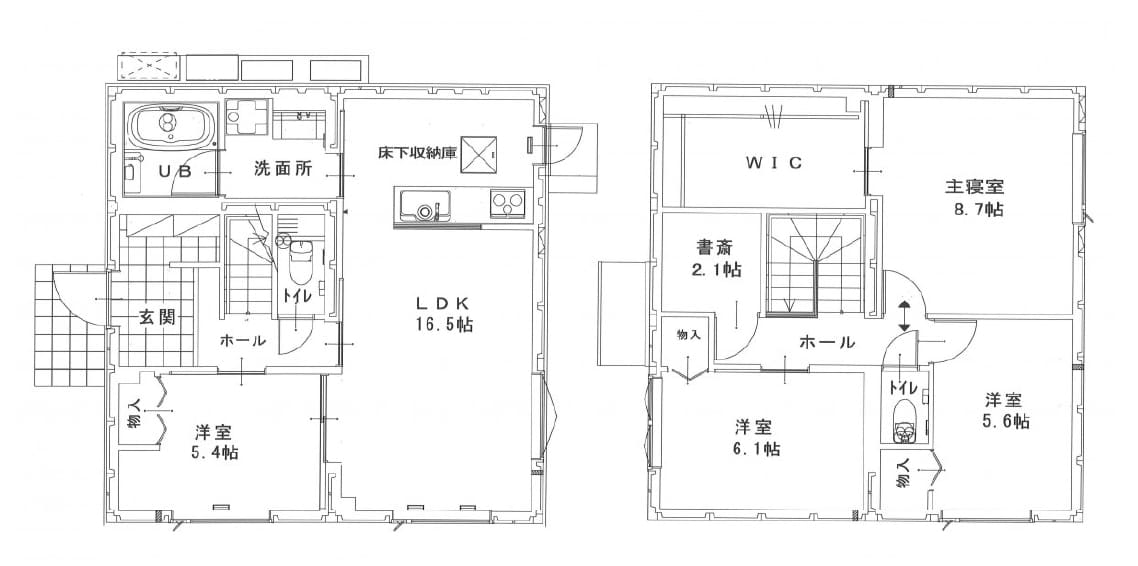
対面キッチン+水回りの動線が一直線なので、家事が楽な間取りです。 オール電化採用。光熱費を削減できます。 主寝室には広々4帖のWIC
間取り
スタッフコメント
お気軽にご来店いただき、実際にご体感ください。ご予約お待ちしております。
- 住所
- 宮城県仙台市太白区郡山欠ノ上33-3
- 営業時間
- 10:00〜17:00
- 定休日
- 火・水曜日
