対象プラン
PLAN

建築士が考えた東西南北の向きの
対象プランを土地に合わせて選ぶ事が
出来ます。
住み心地を最優先し、
且つ効率設計、ムダの無いプランを
ご用意しております。
対象20プランよりご自由に
お選びいただけます。
二階建てプラン(一例)

01
プラン:
2460-A1

1F 40.66㎡(12.30坪)/
2F 40.66㎡(12.30坪)
合計 81.32㎡(24.60坪)
02
プラン:
2810-A1

1F 46.43㎡(14.05坪)/
2F 46.43㎡(14.05坪)
合計 92.86㎡(28.10坪)
03
プラン:
2810-A3

1F 46.43㎡(14.05坪)/
2F 46.43㎡(14.05坪)
合計 92.86㎡(28.10坪)
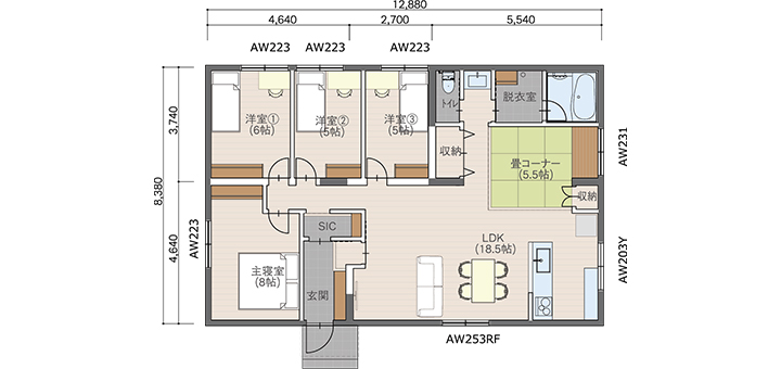
平屋プラン(一例)
01
プラン:
1230-A0

1F 40.66㎡(12.30坪)合計 40.66㎡(12.30坪)
02
プラン:
1405-B2

1F 46.43㎡(14.05坪)合計 46.43㎡(14.05坪)
03
プラン:
1405-B4

1F 46.43㎡(14.05坪)合計 46.43㎡(14.05坪)
そんな高性能・高品質の
百年住宅の家が今なら お得になるチャンス!
百年住宅の家が今なら お得になるチャンス!


