自由設計プラン例
PLAN

住み心地を最優先し、且つ効率設計、
ムダの無いお客様のご要望にあったプラン
を
無料にて設計しご提案いたします。
二階建て(一例)

01
2460-A1

1F 40.66㎡(12.30坪)/
2F 40.66㎡(12.30坪)
合計 81.32㎡(24.60坪)
02
2810-A2

1F 46.43㎡(14.05坪)/
2F 46.43㎡(14.05坪)
合計 92.86㎡(28.10坪)
03
2810-A3

1F 46.43㎡(14.05坪)/
2F 46.43㎡(14.05坪)
合計 92.86㎡(28.10坪)
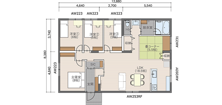
平屋(一例)

01
14P×9P-S

延床面積107.93㎡(32.65坪)
そんな高性能・高品質の
百年住宅の家が今なら お得になるチャンス!
百年住宅の家が今なら お得になるチャンス!


